Hobita sauna
Hobita sauna
Hobita sauna
Hobita sauna
Hobita sauna
Hobita sauna
Hobita sauna
Hobita sauna
Hobita sauna
Hobita sauna
Hobita sauna
Hobita sauna
Hobita sauna
Hobita sauna
Hobita sauna
Hobita sauna
Hobita sauna
Hobita sauna

Hobita sauna

19995.00 EUR

Pirts grīda veidota no egles koka 45x145mm ar 150mm siltinājumu, pretvēja un pretkondensāta plēvi . 

Grīda aizsargāta ar pretgrauzēju sietu un insektu sietu; 

Visās telpās grīda flīzēta,elektriski apsildāma,regulējama ar vadību;

Sienas veidotas no mucas dēļa - 45mm;

Savelkošais elements, nerūsējošā tērauda stīpas – 4gb.;

Ārpuses sienu tonis no mūsu krāsu kataloga Remmers ( pieejami 5 krāsu toņi)

Bitumena jumta segums ar apakšklāju;

Izbūvēti elektro tīkli un santehnika (rozetes, slēdži, gaismekļi);

Svaigā gaisa vārsti iebūvēti sienās, pēc nepieciešamības atverami/aizverami;

 

PIRTS EKSPLUATĀCIJA 

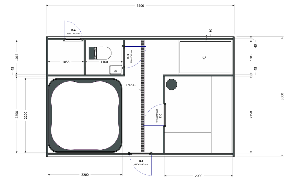
Pirts garums: 5.5m

Pirts platums 3.5mm 

 

DURVIS UN LOGI:

(Termiski apstrādāts stikls ar augstu izturības pakāpi,viens no drošības stikliem, kas perfekti iztur krasas temperatūras maiņas); 

Rūdītā stikla durvis uz pērtuvi; 

Apaļi logi pērtuvē;

Ieejas durvis koka,slēdzamas;

Koka durvis uz WC telpu,slēdzamas;

Koka durvis uz sānmezglu,slēdzamas;

Dušas durvis;

 

PIRTS TELPA:

Grīda flīzēta kritumā uz trapu,el.apsildāma;

Melnalkšņa grīdas redele, izņemama, ērtai grīdas uzkopšanai;

Melnalkšņa lāvas  ar pakāpienu un  muguras balstu;

Elektriskā pirts krāsns HARVIA ar WiFi vadību;

Metāla paaugstinājums pirts krāsnij, ugunsdroši materiāli;

Pirts krāsns akmeņi - 120kg;

 

ELEKTROINSTALĀCIJA(iebūvēta sienās):;

Kontaktligzdas un gaismas slēdži;

Pērtuvē apgaismojums 1 lampa virs ieejas durvīm;

Apgaismojums 2 lampas pie ieejas durvīm (saunas durvīm)

Iebūvēts apgaismojums kubla zonā, wc telpā un dušas zonā

Apgaismojums sānmezglā;

 

Akrila  kubls ar siltumsūkni

Akrila kubls 2.2mx2.2m - zils marmors;

  • Dziļums 0.89m;
  • Egles koka apdare,  krāsota ar Remmers krāsu ( pieejami 5 krāsu toņi)
  • Trepes ērtākai iekāpšanai kublā;
  • Airo masāžas sistēma;
  • Hidro masāžas sistēma;
  • LED gaisma, iestrādāta kubla baseinā, maināmi krāsu toņi ( 10 krāsas);
  • Siltināts kubla baseins, siltināts ar siltumizolācijas putām;
  • Termo vāks, siltināts, salokāms divās daļās, ērtākai noņemšanai;
  • Strāvas noplūdas automāts;
  • Filtrācijas sistēma

 

WC telpa

Grīda flīzēta, el.apsildāma

WC pods

Izlietne ar skapīti

 

Dušas zona

Grīda flīzēta kritumā uz trapu,elektriski apsildāma;

Elektriskais Caurplūdes sildītājs ar dušas maisītāju;

Dušas durvis

facbook ikona whatsapp ikona